Respirator fit testing is an essential component of a comprehensive respiratory protection program. It ensures that the respirator worn by an individual provides a proper seal and protection against harmful airborne contaminants. One tool used to conduct fit testing is a printable respirator fit test card, which helps record and track the results of the fit test.
With the ongoing COVID-19 pandemic, the importance of proper respiratory protection has been highlighted. Employers are required to ensure that their employees are fit-tested for respirators to ensure their safety in hazardous work environments. A printable respirator fit test card can help streamline the fit testing process and ensure compliance with regulatory standards.
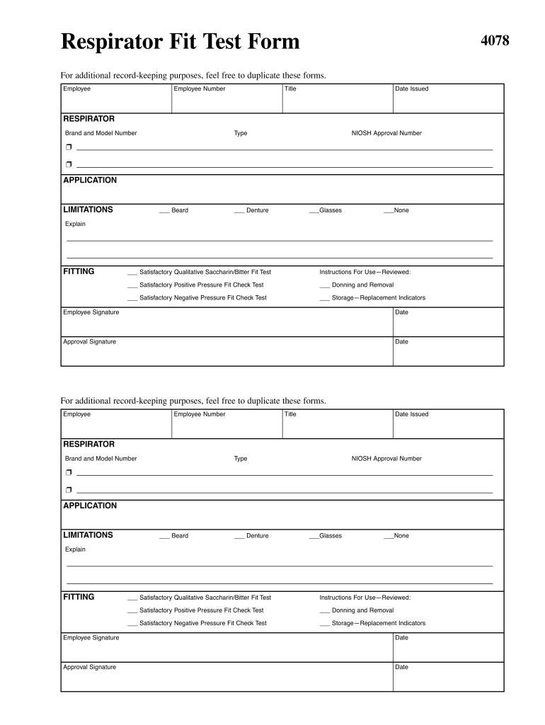
Printable Respirator Fit Test Card
A printable respirator fit test card typically includes spaces to record the type of respirator being tested, the size of the respirator, the date of the fit test, the name of the individual being tested, and the results of the fit test. It allows for easy documentation and tracking of fit test results, making it easier to monitor and manage the respiratory protection program.
Employers can use printable fit test cards to keep detailed records of fit testing results for each employee. This information can be used to identify trends, track the performance of different respirator models, and ensure that employees are wearing properly fitting respirators. Regular fit testing is essential to ensure that respirators continue to provide adequate protection.
Printable fit test cards can also serve as a reminder for employees to undergo fit testing at regular intervals. By having a physical record of their fit test results, employees can easily track when their next fit test is due and ensure that they remain compliant with workplace safety regulations. This can help prevent lapses in respiratory protection and ensure the continued safety of employees.
In conclusion, printable respirator fit test cards are a valuable tool for ensuring the proper fit and performance of respirators in the workplace. By using these cards to document fit test results, employers can maintain a comprehensive respiratory protection program and protect the health and safety of their employees. Regular fit testing and proper documentation are essential components of a successful respiratory protection program.
